Ashfield, Stowmarket, Suffolk

Sold Subject to Contract Guide Price, £875,000

4 2 3
Description An attractive, outstanding Grade II Listed country residence in a delightful rural setting benefiting from extensive grounds extending to in all about 14 acres, which incorporates a range of outbuildings, paddocks, lake and formal gardens.

Constructed predominately of a timber frame beneath a tiled roof with many later additions, High Row Farm is an individual and characterful family house of the highest order and makes for an impressive yet homely family residence.

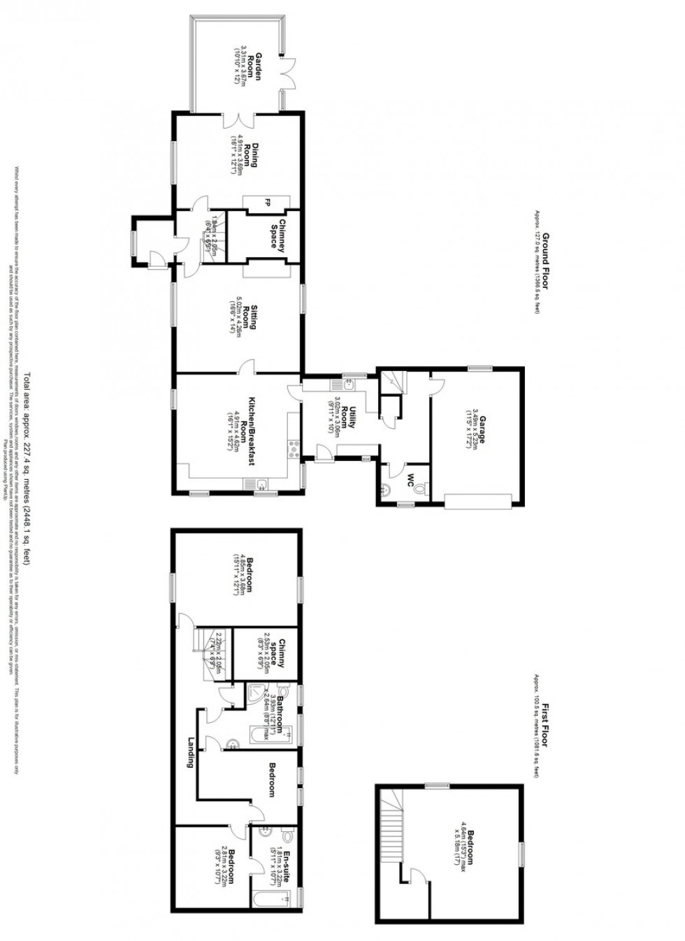
The accommodation, arranged over two floors, extends to almost 2,500 square feet and offers both proportionate reception and bedroom space creating flexible family living. There is also the potential for either home office space or annexe style accommodation by way of the room above the garage with the opportunity to incorporate the utility area to serve as a kitchen.

Outside are extensive and well-orientated grounds extending to in all about 14 acres which comprise formal gardens, substantial lake, a range of agricultural barns and storage sheds, paddocks with post and rail fencing and generous parking area with a lengthy gravelled drive.

The accommodation in more detail comprises:

Front door to:

Entrance Hall Exposed timbers, window to front aspect and latch door to:

Inner-Hall Stairs rising to the first floor, exposed timbers and doors to:

Dining Room Approx 16'1 x 12'1 (4.91m x 3.69m) Impressive, light and airy space with window to front aspect, exposed timbers, inset with fireplace on a stone with red brick surround and oak bressummer over and incorporating wood burning stove and double doors to:

Garden Room Approx 12' x 10'10 (3.67m x 3.31m) With triple aspect windows to the front, side and rear, French doors to the rear opening onto the terrace and exposed brickwork.

Sitting Room Approx 16'6 x 14' (5.02m x 4.26m) Magnificent area with double aspect windows to the front and rear, exposed timbers, oak panelling and inset with wood burning stove on a brick hearth with red brick surround and oak bressummer over. Door to:

Kitchen/Breakfast Room Approx 16'1 x 15'2 (5.02m x 4.26m) Fitted with a matching range of wall and base units with worktops over and inset with sink, drainer and chrome mixer tap. Integrated appliances include Range style cooker with five ring gas hob and extractor over. Triple aspect windows to the front, rear and side, open studwork and exposed timbers. Door to:

Utility Room Approx 10' x 9'11 (3.06m x 3.02m) Personnel door to side, windows to either side aspect and fitted with a matching range of wall and base units with worktops over and inset with stainless steel sink, drainer and chrome mixer tap. Space for white goods, tiled flooring, access to loft and archway to:

Second Inner-Hall With door to side opening onto the terrace, tiled flooring, stairs rising to the first floor, door to garage and door to:

Cloakroom White suite comprising w.c, hand wash basin, tiled flooring, heated towel rail, frosted window to side aspect and extractor.

Single Garage With extensive built-in storage, double doors, power and light connected and window to rear aspect. The garage also houses the hot water cylinder and boiler.

Secondary staircase from second inner-hall to:

Landing Door to:

Bedroom/Office Approx 17´ x 15´2 max (5.18m x 4.64m max) Double room with double aspect windows to the rear and side. This space gives the feeling of being detached from the main bedroom accommodation and therefore lends itself well as an office space for working from home due to the great deal of privacy.

Stairs from inner-hall to:

First Floor Split-Level Landing Extending almost to either end of the house and offering exposed timbers, multiple windows to front aspect, door to airing cupboard with shelving and doors to:

Master Bedroom Approx 10'7 x 9'3 (3.22m x 2.81m) Double room with exposed timbers, window to side aspect and door to:

En-Suite Bathroom White suite comprising w.c, hand wash basin, panelled bath, heated towel rail, exposed timbers and window to rear aspect.

Bedroom Two Approx 15'11 x 12'1 (4.85m x 3.68m) Double room with double aspect windows to the front and rear and exposed timbers. (Please note, slight sloping floor).

Bedroom Three Approx 12'11 x 9'7 (2.53m x 2.05m) Two windows to rear aspect and exposed timbers. Door to:

Family Bathroom Also accessed via a door from the landing. Comprising white suite with w.c, hand wash basin, corner tiled shower cubicle, rolled-top bath, heated towel rail, two frosted windows to rear aspect and exposed timbers.

Outside High Row Farm is set slightly back from the road and is accessed through a five-bar gate, which in turn leads to a gravelled drive providing extensive off-road parking and thereafter leading to the outbuildings behind the main house, which in turn comprise Nissen hut, storage barn and stable block. The grounds, which in all extend to about 14 acres are made up of formal gardens surrounding the main house, a substantial lake, a series of paddocks with post and rail fencing, ancillary grounds ideal for a variety of uses and surrounding the largest agricultural barn, which may have potential for development under the Part 3 Class Q planning legislation subject to consent - if you require further information then please do not hesitate to contact the agent.

The boundaries are defined by hedging for the most part.

Local Authority Mid Suffolk District Council

Council Tax Band - E

Services Mains water, drainage and electricity. Oil-fired heating.

Disclaimer Town & Village Properties (and its subsidiaries and their joint Agents where applicable) for themselves and for the vendors or lessors of this property for whom they act, give notice that (I) these particulars are a general outline only for the guidance of prospective purchasers or tenants, and do not constitute the whole or any part of an offer or contract (II) Town & Village Properties cannot guarantee the accuracy of any description, dimensions, references to conditions, necessary permissions for use and occupancy and other details contained herein and prospective purchasers or tenants must not rely on them as statements of fact or representations and must satisfy themselves as to their accuracy, (III) No employee of Town & Village Properties (and its subsidiaries and their joint Agents where applicable) has any authority to make or give any representation or warranty or enter into any contract whatever in relation to the property, (IV) Town & Village Properties (and its subsidiaries and their joint Agents where applicable) will not be liable in negligence or otherwise, for any loss arising from the use of these particulars and Town & Village Properties (and its subsidiaries and their joint Agents where applicable) have not tested any apparatus, equipment, fixtures and fittings or services and so cannot verify that they are in working order or fit for the purpose. A buyer is advised to obtain verification from their Solicitor, (V) Photographs will only show certain parts of the property and assumptions should not be made in respect of those parts of the property that have not been photographed. (Items or contents shown in the photographs are not included as part of the sale unless specified otherwise. It should not be assumed the property will remain as shown in the photograph. Photographs are taken using a wide-angle lens.
  • Delightful rural setting
  • A wealth of period features
  • Spacious & flexible family living
  • Oil-fired heating
  • Extensive grounds extending to in all about 14 acres
  • Range of outbuildings
  • Paddocks
  • Lake & formal gardens
  • Generous off-parking
Floorplan for Ashfield, Stowmarket, Suffolk

Get an instant online valuation

Find out how much your property is worth