Boxford, Sudbury, Suffolk

For Sale Offers In Excess Of, £650,000

4 2 3
Description A spacious, characterful and immaculately presented four bedroom Grade II Listed detached residence occupying an enviable position within this lesser-known settlement on the outskirts of Boxford and enjoying well-maintained generous south-facing grounds as well as extensive off-road parking.

The property boasts a wealth of period features including inglenook fireplaces, oak exposed timbers and Suffolk latch doors.

Of particular note is the detached outbuilding ideal for a variety of uses but currently used as a utility room. Also of benefit to a potential buyer is the property is offered with no onward chain.

About the Area The much sought-after village of Boxford enjoys a good range of day-to-day amenities including a church, independent shops including a butcher, coffee shop and Post Office. The village further benefits from a GP surgery, garage, public houses and primary school.

Further amenities can be found in the market towns of Hadleigh and Sudbury with more extensive facilities in Ipswich and Colchester, both of which, have mainline rail stations into London's Liverpool Street Station.

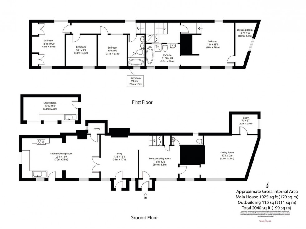
The accommodation in more detail comprises:

Front door to:

Porch With tiled flooring and latch door to:

Reception Hall Approx 12'8 x 12'6 (3.8m x 3.8m) Light and airy welcoming entrance with window to front aspect, striking inset with inglenook fireplace with oak bressummer over, red brick surround and brick hearth, oak flooring, door to cupboard housing fuse board, stairs rising to the first floor, doors to understairs cupboards and a range of doors and openings to:

Inner-Hall Spotlight, window to front aspect and opening to:

Sitting Room Approx 17'1 x 12'6 (5.2m x 3.8m) Magnificent space with exposed timbers, window to front aspect, tongue and groove panelling, feature inset with wood burning stove on a brick hearth, exposed red brick surround, bressummer and wooden mantel over, oak flooring and door to:

Study Approx 7'5 x 6'7 (2.2m x 2.0m) Conveniently tucked away towards the far-end of the property and incorporating ample space for storage shelving, spotlights, integrated workspace unit and partly leaded windows to side aspect with secondary glazing.

Cloakroom White suite comprising w.c, hand wash basin nestled into an inset, exposed timbers, spotlights, frosted window to rear aspect and tiled flooring.

Snug Approx 12'8 x 12'4 (3.8m x 3.7m) Two windows to front aspect offering a great deal of natural light, exposed timbers, feature inset with wood burning stove on a tiled hearth with oak bressummer over, further door to second porch with cloak hanging space and spotlight and this in turn leads to an additional front door. Double doors to:

Kitchen/Dining Room Approx 23'1 x 12'9 (7.0m x 3.9m) Delightful open-plan space now displaying well-appointed fitted kitchen having been meticulously upgraded during the current owner's custody. Fitted with a matching range of wall and base units with granite worktops over and inset with butler sink and mixer tap. Space for dishwasher and American style fridge/freezer. Integrated appliances include Richmond range style cooker. Tiled splashbacks, double aspect windows to the front and side, personnel door to front, spotlights and oak flooring. This space leads to the dining area, again with oak flooring and benefiting from an open fireplace with brick hearth and red brick surround, exposed timbers, window to front aspect, extensive storage cabinets and Suffolk latch door to:

Pantry North facing benefiting from window to side aspect and incorporating built-in shelving and flagstone flooring.

First Floor Landing With attractive feature cross beam, vaulted ceiling, exposed timbers, split-level staircase and doors in either direction to:

Master Bedroom Suite Approx 13'4 x 13'4 (4.0m x 4.0m) Accessed via a passageway from the main landing to a magnificent double room with panelling, double aspect windows to the front and rear, vaulted ceiling and 'hidden door' to:

Dressing Room Approx 12'7 x 4' (3.8m x 1.2m) Incorporating hanging space, spotlights, window to side aspect with secondary glazing and exposed timbers.

En-Suite Bathroom Accessed via a passageway around the chimney breast leading to a luxurious fitted bathroom suite comprising white suite with w.c, hand wash basin set into a vanity unit with storage under, roll-top bath with ball and claw feet, wet room style shower area, cross beam, window to front aspect, exposed timbers, spotlighting and extractor.

Bedroom Two Approx 13'4 x 10' (4.0m x 3.0m) Double room with double aspect windows to the front and rear and built-in wardrobes.

Bedroom Three Approx 10'1 x 9'9 (3.0m x 3.0m) Double room with built-in wardrobe, window to front aspect and exposed beams.

Bedroom Four Approx 10'4 x 9'3 (3.1m x 2.8m) Double room with window to front aspect, built-in wardrobe, exposed beams and oak flooring.

Family Bathroom Luxuriously appointed white suite comprising w.c, double hand wash basin unit with storage under, Victorian style heated towel rail, oak panelling, panelled bath with shower attachment, partly tiled walls, spotlights, tiled flooring and extractor.

Outside Primrose House is nestled centrally within Stone Street and the attractive front elevation of the house sits 'side on' to the road and is accessed via a shared entrance way which, in turn leads to a private gravelled drive providing extensive off-road parking. From here one can meander through the pretty, well-maintained and predominantly lawned grounds, interspersed with a variety of established flower and shrub borders as well as specimen trees.

When arriving at the front, one must also take note of the delightful sun terrace enjoying a predominately south-facing aspect. Also incorporated within the plot is a detached outbuilding ideal for a variety of uses and currently used as a utility area and benefiting from power and light, personnel door and windows. Having previously been used as an office telephone connection is ready to be used.

Local Authority Babergh District Council

Council Tax Band - G

Services Mains water, drainage and electricity. Oil-fired heating.

Agents Note - We understand that the property is Grade II Listed.

- We understand from our client the property is located within a Conservation Area.

Disclaimer Town & Village Properties (and its subsidiaries and their joint Agents where applicable) for themselves and for the vendors or lessors of this property for whom they act, give notice that (I) these particulars are a general outline only for the guidance of prospective purchasers or tenants, and do not constitute the whole or any part of an offer or contract (II) Town & Village Properties cannot guarantee the accuracy of any description, dimensions, references to conditions, necessary permissions for use and occupancy and other details contained herein and prospective purchasers or tenants must not rely on them as statements of fact or representations and must satisfy themselves as to their accuracy, (III) No employee of Town & Village Properties (and its subsidiaries and their joint Agents where applicable) has any authority to make or give any representation or warranty or enter into any contract whatever in relation to the property, (IV) Town & Village Properties (and its subsidiaries and their joint Agents where applicable) will not be liable in negligence or otherwise, for any loss arising from the use of these particulars and Town & Village Properties (and its subsidiaries and their joint Agents where applicable) have not tested any apparatus, equipment, fixtures and fittings or services and so cannot verify that they are in working order or fit for the purpose. A buyer is advised to obtain verification from their Solicitor, (V) Photographs will only show certain parts of the property and assumptions should not be made in respect of those parts of the property that have not been photographed. (Items or contents shown in the photographs are not included as part of the sale unless specified otherwise. It should not be assumed the property will remain as shown in the photograph. Photographs are taken using a wide-angle lens.
  • Immaculately presented
  • A wealth of period features
  • Well-appointed fitted kitchen
  • Luxuriously appointed bathroom suites
  • Generous, well-maintained south-facing grounds
  • Extensive off-road parking
  • Detached outbuilding ideal for a variety of uses
  • No onward chain
Floorplan for Boxford, Sudbury, Suffolk
Similar Property

Get an instant online valuation

Find out how much your property is worth