Capel St. Mary, Ipswich, Suffolk

Sold Guide Price, £365,000

3 2 1
Description A spacious and well-presented three double bedroom detached family house, located on a no through road within the heart of this ever popular village and enjoying the added benefit of the NHBC Guarantee.

Notable features include extensive off-road parking, a single garage and proportionate, well-maintained rear gardens.

About the Area Capel St Mary is a popular Suffolk village approximately six miles south west of Ipswich and two miles from the Dedham Vale which is a designated Area of Outstanding Natural Beauty. There is ideal road access onto the A12 providing a link to Ipswich to the north, Colchester to the south and London beyond. In the centre of the village there are a variety of facilities including a good selection of small shops, newsagents, hairdressers and Co-op. There is also a public house and primary school, whilst the nearest senior school will be found in the nearby village of East Bergholt.

The accommodation in more detail comprises:

Front door to:

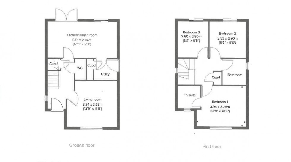
Entrance Hall Welcoming, light and airy entrance with stairs rising to the first floor, window to side aspect, door to understairs cupboard and doors to:

Cloakroom White suite comprising w.c, hand wash basin with tiled splashback and extractor.

Sitting Room Approx 12'9 x 11'11 (3.94m x 3.68m) Generous space with window to front aspect.

Kitchen/Dining Room Approx 17'11 x 9'3 (5.51m x 2.84m) Open plan and fitted with a matching range of wall and base units with worktops over and inset with one and a half bowl stainless steel sink, drainer and chrome mixer tap. Integrated appliances include four ring induction hob with extractor over and oven. Space for fridge/freezer and white goods. The kitchen also incorporates a breakfast bar, open plan to dining area and French doors to rear opening onto the terrace, window to rear aspect and door to:

Utility Room With personnel door to side and housing the gas-fired boiler as well as fitted with base units with worktops over and space below for white goods and door to proportionate storage cupboard.

First Floor Galleried Landing Window to side aspect, access to loft, door to airing cupboard and doors to:

Master Bedroom Approx 12'9 x 10'6 (3.94m x 3.25m) Double room with window to front aspect and door to:

En-Suite Shower Room White suite comprising w.c, hand wash basin, tiled shower cubicle, partly tiled walls, heated towel rail, frosted window to front aspect and extractor.

Bedroom Two Approx 9'5 x 9'3 (2.90m x 2.83m) Double room with window to rear aspect.

Bedroom Three Approx 9'5 x 8'5 (2.90m x 2.60m) Double room with window to rear aspect.

Family Bathroom Well-appointed white suite comprising w.c, hand wash basin, panelled bath with shower attachment, partly tiled walls, frosted window to side aspect and extractor.

Outside The property is conveniently situated towards the end of a tucked away cul-de-sac and is accessed over a private drive providing off-road parking for multiple vehicles as well as giving access to the single garage. This is fitted with an up and over door, power and lighted connected and EV charging point connected.

The rear gardens are proportionate and predominately lawned with a terrace abutting the rear of the property and boundaries defined by a mixture of fencing and a brick wall.

Local Authority Babergh District Council

Council Tax Band - D

Services Mains water, drainage and electricity. Gas-fired heating

Agents Note We understand from our client that the property is subject to an annual maintenance charge which is currently in the region of £350.00 per annum. Further details of this can be found by contacting the agent.

We understand from our client that the property benefits from the NHBC Guarantee

Disclaimer Town & Village Properties (and its subsidiaries and their joint Agents where applicable) for themselves and for the vendors or lessors of this property for whom they act, give notice that (I) these particulars are a general outline only for the guidance of prospective purchasers or tenants, and do not constitute the whole or any part of an offer or contract (II) Town & Village Properties cannot guarantee the accuracy of any description, dimensions, references to conditions, necessary permissions for use and occupancy and other details contained herein and prospective purchasers or tenants must not rely on them as statements of fact or representations and must satisfy themselves as to their accuracy, (III) No employee of Town & Village Properties (and its subsidiaries and their joint Agents where applicable) has any authority to make or give any representation or warranty or enter into any contract whatever in relation to the property, (IV) Town & Village Properties (and its subsidiaries and their joint Agents where applicable) will not be liable in negligence or otherwise, for any loss arising from the use of these particulars and Town & Village Properties (and its subsidiaries and their joint Agents where applicable) have not tested any apparatus, equipment, fixtures and fittings or services and so cannot verify that they are in working order or fit for the purpose. A buyer is advised to obtain verification from their Solicitor, (V) Photographs will only show certain parts of the property and assumptions should not be made in respect of those parts of the property that have not been photographed. (Items or contents shown in the photographs are not included as part of the sale unless specified otherwise. It should not be assumed the property will remain as shown in the photograph. Photographs are taken using a wide-angle lens.
  • Spacious & well-presented
  • Tucked away cul-de-sac position
  • NHBC guarantee
  • En-suite shower room
  • Proportionate, well-maintained rear gardens
  • Ample off-road parking
  • Garage & EV charging point
  • Offered with no onward chain
Floorplan for Capel St. Mary, Ipswich, Suffolk

Get an instant online valuation

Find out how much your property is worth