Baylham, Ipswich, Suffolk

For Sale Guide Price, £699,995

4 1 2
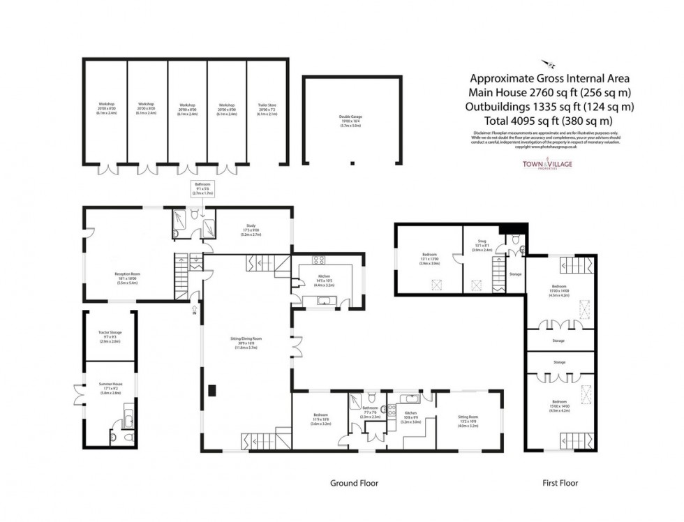
Description An outstanding four double bedroom detached barn conversion in an unrivalled location, standing in an elevated rural position within grounds extending to in all about 1.1 acres.

Other notable benefits include extensive off-road parking, a double detached cart lodge, a one bedroom self-contained, (but adjoining) annexe, summer house with plumbing and established, pretty, formal gardens.

The accommodation in more detail comprises:

Front door to:

Reception Hall Split-level, light and airy welcoming entrance with cloak hanging space, stairs rising to the first floor and doors to:

Sitting Room Approx 38'9 x 16'8 (11.8m x 5.7m) Extending across most of the breadth of the property with a staircase rising to the first floor at either end, triple aspect windows to front, side and rear, this room is at the hub of the house and boasts a feature wood burning stove with redbrick surround on a tiled plinth, French doors to the rear opening onto the terrace and door to:

Kitchen/Breakfast Room Approx 14'5 x 10'5 (4.4m x 3.2m) Fitted with a matching range of wooden wall and base units with worktops over and inset with sink, drainer and mixer tap. Integrated appliances include Range style cooker, dishwasher and wine rack. Space for white goods, double aspect windows to the rear and side and personnel door opening onto the terrace.

Ground Floor Wet Room White suite comprising w.c, hand wash basin, mosaic tiled flooring, two shower screens, each with a shower attachment, heated towel rail, frosted window to side aspect.

Study Approx 17'3 x 9' (5.2m x 2.7m) Currently used as a convenient and individually designed work space with window to rear aspect and sizable enough for multiple work spaces.

Reception room/ Ground Floor Bedroom Approx 18'1 x 18' (5.5m x 5.4m) Double room with triple aspect windows to the front and either side, personnel door opening onto the driveway, built-in shelving and wood flooring border. Originally designed as a music room by an acoustic consultant.

First Floor The first floor bedrooms are, as is rarely seen, accessed each via their own individual staircases, the first of which leads from the reception hall up to:

Bedroom Suite Comprising:

Landing/Snug With skylight, incorporating water softener and doors to:

Cloakroom White suite comprising w.c, hand wash basin with tiled splashback and door to storage cupboard.

Bedroom Approx 13'1 x 13' (3.9m x 3.9m) With skylight and window to front aspect.

Staircase from the southern end of the sitting room.

As you climb the stairs there is a door to airing cupboard housing the hot water cylinder with built-in shelving. This in turn leads to:

Bedroom Approx 15' x 14' (4.5m x 4.2m) Double bedroom with skylight, window to side aspect and extensive built-in storage.

Staircase from the northerly end of the sitting room to:

Bedroom Approx 15' x 14' (4.5m x 4.2m) Double bedroom with skylight, window to side aspect commanding far reaching countryside views and extensive built-in wardrobes.

Annexe Self-contained, adjoining one bedroom annexe ideal for both an additional income stream as well as a 'Granny Annexe,' which in turn comprises door to:

Kitchen Approx 10'8 x 9'9 (3.2m x 3.0m) Fitted with a matching range of wall and base units with worktops over and inset with one and a half bowl, sink, drainer and chrome mixer tap. Integrated appliances include oven, four ring gas hob with extractor over, fridge and washing machine. Window to side aspect and openings to:

Sitting Room Approx 13'2 x 10'8 (4.0m x 3.2m) Double aspect windows to the rear and side and sliding door to side opening onto the terrace.

Inner Hall Window to side aspect, door to airing cupboard housing hot water cylinder with built-in shelving. This space also houses the fuse box and doors to:

Bedroom Approx 11'9 x 10'8 (3.6m x 3.2m) Double room with window to side aspect and built-in wardrobes.

Shower Room White suite comprising w.c, hand wash basin with storage below, corner shower cubicle, heated towel rail, spotlights, extractor and frosted window to side aspect.

Outside Walnut Barn is set well back from the road on a rarely travelled country lane in an unrivalled elevated position and is accessed over a private gravelled drive providing extensive off-road parking as well as giving access to the detached double cart lodge. The parking area is located behind a copse of mature woodland, and therefore offers a great deal of privacy.

To the rear are predominately lawned, proportionate and delightfully positioned formal gardens with a terrace abutting the rear of the property and incorporating a substantial detached summer house with plumbing, and an adjoining sun terrace. Also incorporated within the plot are a range of metal storage units, ideal for a variety of uses, and greenhouse. Mature trees extend through the grounds and countryside views are offered in abundance.

In all about 1.1 acres.

Local Authority Mid Suffolk District

Council Tax Band - D Annexe - A

Services Mains electricity. Oil-fired heating.
Private water supply (borehole).
Private drainage (Klargester).
LPG gas bottles for cooking facilities.

Agents Note We understand from our client the property benefits from solar panels for both heating and hot water. Further details of which can be found by contacting the agent.

Disclaimer
Town & Village Properties (and its subsidiaries and their joint Agents where applicable) for themselves and for the vendors or lessors of this property for whom they act, give notice that (I) these particulars are a general outline only for the guidance of prospective purchasers or tenants, and do not constitute the whole or any part of an offer or contract (II) Town & Village Properties cannot guarantee the accuracy of any description, dimensions, references to conditions, necessary permissions for use and occupancy and other details contained herein and prospective purchasers or tenants must not rely on them as statements of fact or representations and must satisfy themselves as to their accuracy, (III) No employee of Town & Village Properties (and its subsidiaries and their joint Agents where applicable) has any authority to make or give any representation or warranty or enter into any contract whatever in relation to the property, (IV) Town & Village Properties (and its subsidiaries and their joint Agents where applicable) will not be liable in negligence or otherwise, for any loss arising from the use of these particulars and Town & Village Properties (and its subsidiaries and their joint Agents where applicable) have not tested any apparatus, equipment, fixtures and fittings or services and so cannot verify that they are in working order or fit for the purpose. A buyer is advised to obtain verification from their Solicitor, (V) Photographs will only show certain parts of the property and assumptions should not be made in respect of those parts of the property that have not been photographed. (Items or contents shown in the photographs are not included as part of the sale unless specified otherwise. It should not be assumed the property will remain as shown in the photograph. Photographs are taken using a wide-angle lens.
  • Detached barn with spacious & flexible living accommodation of over 2700 sq ft
  • Adjoining one bedroom annexe
  • Grounds extending to in all about 1.1 acres
  • 38' sitting/dining room and additional reception room
  • 4 bedrooms and 2reception rooms in main property
  • Range of metal storage units and summerhouse with plumbing
  • Established, pretty formal gardens
  • Double detached cart lodge and extensive parking
  • Elevated rural position
Floorplan for Baylham, Ipswich, Suffolk
Similar Property

Get an instant online valuation

Find out how much your property is worth